日标浮动式法兰球阀
日标浮动式法兰球阀
产品详情


设计标准

技术规范:日标
设计标准:JIS B2071
结构长度:JIS B2002
连接法兰:JIS B2212B2214
试验与检验:JIS B2003


性能规范

公称压力:10K20K
强度试验:PT2.45.8Mpa
密封试验:1.54.0 Mpa
气密封试验:0.6Mpa
阀门主体材料:WCB(C)CF8(P)CF3( PL), CF8M (R), CF3M (RL)
适用介质:水、蒸汽、油品、硝酸类、醋酸类
适用温度:-29°C-150°C


产品概览

日标球阀采用分体式结构设计,密封性能好,不受安装方向限制,介质流动可任意;球体与球体之间有防静电装置;阀杆防爆设计;自动压缩填料设计,流体阻力小;日标球阀本身结构紧凑,密封可靠,结构简单,维修方便,密封面和球面常处于关闭状态,不易被介质冲蚀,操作维修方便,适用于水、溶剂、酸类、气体等一般工作介质,如日标球阀,也适用于氧气、双氧水、甲烷、乙烯等介质工况,广泛应用于各行业。


产品结构

1.png 2.png 3.png


主要零件材料

材料名称

碳钢

不锈钢

阀体

WCB、A105

CF8、CF3

CF8M、CF3M

阀盖

WCB、A105

CF8、CF3

CF8M、CF3M

球体

304

304

316

阀杆

304

304

316

阀座

聚四氟乙烯、聚四氟乙烯

填料

聚四氟乙烯/柔性石墨

压盖

WCB、A105

CF8


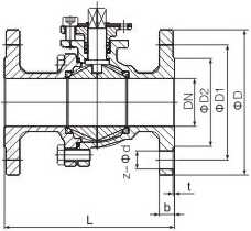
主要外形尺寸和连接尺寸

(JIS): 10K

DN

L

D

D1

D2

B

T

Z-ΦD

ISO5211

TXT

15A

108

95

70

52

12

1

4-Φ15

F03/F04

9X9

20A

117

100

75

58

14

1

4-Φ15

F03/F04

9X9

25A

127

125

90

70

14

1

4-Φ19

F04/F05

11X11

32A

140

135

100

80

16

2

4-Φ19

F04/F05

11X11

40A

165

140

105

85

16

2

4-Φ19

F05/F07

14X14

50A

178

155

120

100

16

2

4-Φ19

F05/F07

14X14

65A

190

175

140

120

18

2

4-Φ19

F07

14X14

80A

203

185

150

130

18

2

8-Φ19

F07/F10

17X17

100A

229

210

175

155

18

2

8-Φ19

F07/F10

22X22

125A

300/356

250

210

185

20

2

8-Φ23



150A

340/394

280

240

215

22

2

8-Φ23



200A

450/457

330

290

265

22

2

12-Φ23



250A

533

400

355

325

24

2

12-Φ25



300A

610

445

400

370

24

2

16-Φ25



(JIS): 20K

DN

L

D

D1

D2

B

T

Z-ΦD

15A

140

95

70

52

14

1

4-Φ15

20A

152

100

75

58

16

1

4-Φ15

25A

165

125

90

70

16

1

4-Φ19

32A

178

135

100

80

18

2

4-Φ19

40A

190

140

105

85

18

2

4-Φ19

50A

216

155

120

100

18

2

8-Φ19

65A

241

175

140

120

20

2

8-Φ19

80A

282

200

160

135

22

2

8-Φ23

100A

305

225

185

160

24

2

8-Φ23

125A

381

270

225

195

26

2

8-Φ25

150A

403

305

260

230

28

2

12-Φ25

200A

502

350

305

275

30

2

12-Φ25

250A

568

430

380

345

34

2

12-Φ27

300A

648

480

430

395

36

3

16-Φ27