偏心半球阀
偏心半球阀
产品详情


偏心球阀采用由板簧加载的活动阀座结构,阀座与球体不会出现卡死或分离等问题,密封可靠,使用寿命长,球芯带V型缺口金属阀座具有剪切作用,特别适用于含纤维、细小固体颗粒和浆液的介质。


概括

偏心球阀采用由板簧加载的活动阀座结构,阀座与球体不会出现卡死或分离等问题,密封可靠,使用寿命长,球芯带V型缺口金属阀座具有剪切作用,特别适用于含纤维、细小固体颗粒和浆液的介质。在造纸工业中控制纸浆特别有利。启闭件采用V型槽口结构,彻底解决了介质易沉积在阀腔内的问题。全开时,阀门流量大,压力损失小。结构紧凑,通用性强,流量特性近似等百分比,可调范围大,可调比100:1。

产品结构

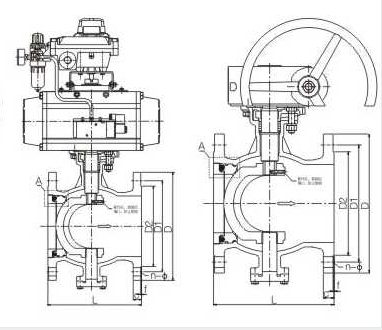
1.png 

外形与连接尺寸

PN16

150磅

10K

IS05211

DN

D

D1

D2

C

F

n-Φb

D

D1

D2

C

F

n-Φb

D

D1

D2

C

F

n-Φb

100

229

220

180

158

20

2

8-Φ18

230

190.5

157.2

24.3

2

8-Φ18

210

175

151

18

2

8-Φ19

F10,17×17

125

254

250

210

188

22

2

8-Φ18

255

215.9

185.7

24.3

2

8-Φ22

250

210

182

20

2

8-Φ23

F10,22×22

150

267

285

240

212

22

2

8-Φ22

280

241.3

215.9

25.9

2

8-Φ22

280

240

212

22

2

8-Φ23

F12,27×27

200

292

340

295

268

24

2

12-Φ22

345

298.5

269.9

29

2

8-Φ22

330

290

262

22

2

12-Φ23

F12,27×27

250

330

405

355

320

26

2

12-Φ26

405

362

323.8

30.6

2

12-Φ26

400

355

324

24

2

12-Φ25

F14.36 × 36

300

356

460

410

378

28

2

12-Φ26

485

431.8

381

32.2

2

12-Φ26

445

400

368

24

2

16-Φ25

F14.36 × 36

350

450

520

470

428

30

2

16-Φ26

535

476.3

412.8

35.4

2

12-Φ30

490

445

413

26

2

16-Φ25

F16,46×46

400

530

580

525

490

32

2

16-Φ33

595

539.8

469.9

37

2

16-Φ30

560

510

475

28

2

16-Φ27

F16,46×46

450

580

640

585

550

40

2

20-Φ30

635

577.9

533.4

40.1

2

16-Φ33

620

565

530

30

2

20-Φ27

F25,55×55

500

660

715

650

610

44

2

20-Φ33

700

635

584.2

43.3

2

20-Φ33

675

620

585

30

2

20-Φ27

F30