产品概览
锻钢法兰式高压球阀关闭部件球体围绕阀体中心线旋转以开启和关闭阀门,密封件嵌在不锈钢阀座中,金属阀座上装有弹簧,当密封面磨损或燃烧时,在弹簧的作用下推动阀座与球体形成金属密封。具有独特的自动泄压功能,当阀腔介质压力超过弹簧预紧力时,出口阀座退球,达到自动泄压效果,泄压后阀座自动复位,适用于水、溶剂、酸和气体等一般工作介质,也适用于介质工况,如氧气、过氧化氢、甲烷和乙烯,它已在各个行业得到很好的应用。
产品结构特点
1、本产品所有部件均为锻件。
2、采用底装式阀杆,设置倒密封结构,确保填料处可靠密封,防止阀杆脱出。
3、采用镶嵌式阀座,阀座后方设有O型圈,确保介质不外漏。
产品结构
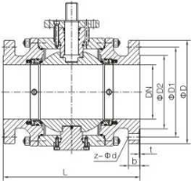
主要外形尺寸
(GB): PN40
DN | L | D | D1 | D2 | B | F | N-ΦD |
100 | 305 | 235 | 190 | 162 | 24 | 2 | 8-18 |
125 | 381 | 270 | 220 | 188 | 26 | 2 | 8-26 |
150 | 403 | 300 | 250 | 210 | 28 | 2 | 8-26 |
200 | 502 | 375 | 320 | 285 | 34 | 2 | 12-30 |
250 | 568 | 450 | 385 | 345 | 38 | 2 | 12-33 |
300 | 648 | 515 | 450 | 410 | 42 | 2 | 16-33 |
350 | 762 | 580 | 510 | 465 | 46 | 2 | 16-36 |
400 | 838 | 660 | 585 | 535 | 50 | 2 | 16-39 |
(GB): PN63
DN | L | D | D1 | D2 | B | F | N-ΦD |
100 | 406 | 250 | 200 | 162 | 30 | 2 | 8-26 |
125 | 432 | 295 | 240 | 188 | 34 | 2 | 8-30 |
150 | 495 | 345 | 280 | 218 | 36 | 2 | 8-33 |
200 | 597 | 415 | 345 | 285 | 42 | 2 | 12-36 |
250 | 673 | 47 | 400 | 345 | 46 | 2 | 12-36 |
300 | 762 | 530 | 460 | 410 | 52 | 2 | 16-36 |
350 | 826 | 600 | 525 | 465 | 56 | 2 | 16-39 |
400 | 902 | 670 | 585 | 535 | 60 | 2 | 16-42 |
(GB): PN100
DN | L | D | D1 | D2 | B | F | N-ΦD |
100 | 432 | 265 | 210 | 162 | 40 | 2 | 8-30 |
125 | 508 | 315 | 250 | 188 | 40 | 2 | 8-33 |
150 | 559 | 355 | 290 | 218 | 44 | 2 | 12-33 |
200 | 660 | 430 | 360 | 285 | 52 | 2 | 12-36 |
250 | 787 | 505 | 430 | 345 | 60 | 2 | 12-39 |
300 | 838 | 585 | 500 | 410 | 68 | 2 | 16-42 |
350 | 889 | 655 | 560 | 465 | 74 | 2 | 16-48 |
400 | 991 | 715 | 620 | 535 | 78 | 2 | 16-48 |
(ANSI): 300LB
DN | L | D | D1 | D2 | B | F | N-ΦD |
100 | 305 | 255 | 200 | 157.2 | 32.2 | 2 | 8-22 |
125 | 381 | 280 | 235 | 185.7 | 35.4 | 2 | 8-22 |
150 | 403 | 320 | 269.9 | 215.9 | 37 | 2 | 12-22 |
200 | 502 | 380 | 330.2 | 269.9 | 41.7 | 2 | 12-26 |
250 | 568 | 445 | 387.4 | 323.8 | 48.1 | 2 | 16-30 |
300 | 648 | 520 | 450.8 | 381 | 51.3 | 2 | 16-33 |
350 | 762 | 585 | 514.4 | 412.8 | 54.4 | 2 | 20-33 |
400 | 838 | 650 | 571.5 | 469.9 | 57.6 | 2 | 20-36 |
(ANSI): 600LB
| NOMINAL DIAMETER | L | D | D1 | D2 | B | F | N-ΦD | |
4″ | 100 | 432 | 275 | 215.9 | 157.2 | 45.1 | 7 | 8-25 |
5″ | 125 | 508 | 330 | 266.7 | 185.7 | 51.5 | 7 | 8-30 |
6″ | 150 | 559 | 355 | 292.1 | 215.9 | 54.7 | 7 | 12-29 |
8″ | 200 | 660 | 420 | 349.2 | 269.9 | 62.6 | 7 | 12-32 |
10″ | 250 | 787 | 510 | 431.8 | 323.8 | 70.5 | 7 | 16-35 |
12″ | 300 | 838 | 560 | 489 | 381 | 73.7 | 7 | 20-35 |
14″ | 350 | 889 | 605 | 527 | 412.8 | 76.9 | 7 | 20-38 |
(ANSI): 900LB
| NOMINAL DIAMETER | L | D | D1 | D2 | B | F | N-ΦD | |
4″ | 100 | 432 | 290 | 235 | 157.2 | 51.5 | 7 | 8-32 |
5″ | 125 | 508 | 350 | 279.4 | 185.7 | 57.8 | 7 | 8-36 |
6″ | 150 | 559 | 380 | 317.5 | 215.9 | 62.6 | 7 | 12-32 |
8″ | 200 | 660 | 470 | 393.7 | 269.9 | 70.5 | 7 | 12-38 |
10″ | 250 | 787 | 545 | 469.9 | 323.8 | 76.9 | 7 | 16-38 |
12″ | 300 | 838 | 610 | 533.4 | 381 | 86.4 | 7 | 20-38 |
14″ | 350 | 889 | 640 | 558.8 | 412.8 | 92.8 | 7 | 20-42 |
16″ | 400 | 991 | 705 | 616 | 469.9 | 95.9 | 7 | 20-45 |
